Posta sanitaria Play-Puig
Nos encontramos en el municipio del Puig entre Puig-Val y Play-Puig, a unos 20 km de la cuidad. Donde se propone una zona residencial, que se basa en bloques de edificios, una posta sanitaría y una escuela de deportes náuticos.
Como se puede observar en el plano de ordenación, se elimina el camino de la tanca que ya existía como único nexo de conexión, entre el pueblo y la playa, pero se plantea una serie de ejes que van conectando los diferentes espacios que se encuentran en la ordenación. Entre estos ejes que nacen desde la entrada principal del parking, punto de llegada de las personas, destacamos el eje que nos lleva hasta el paseo. Desde este eje surgen diferentes espacios de transición de zonas y zonas colectivas.
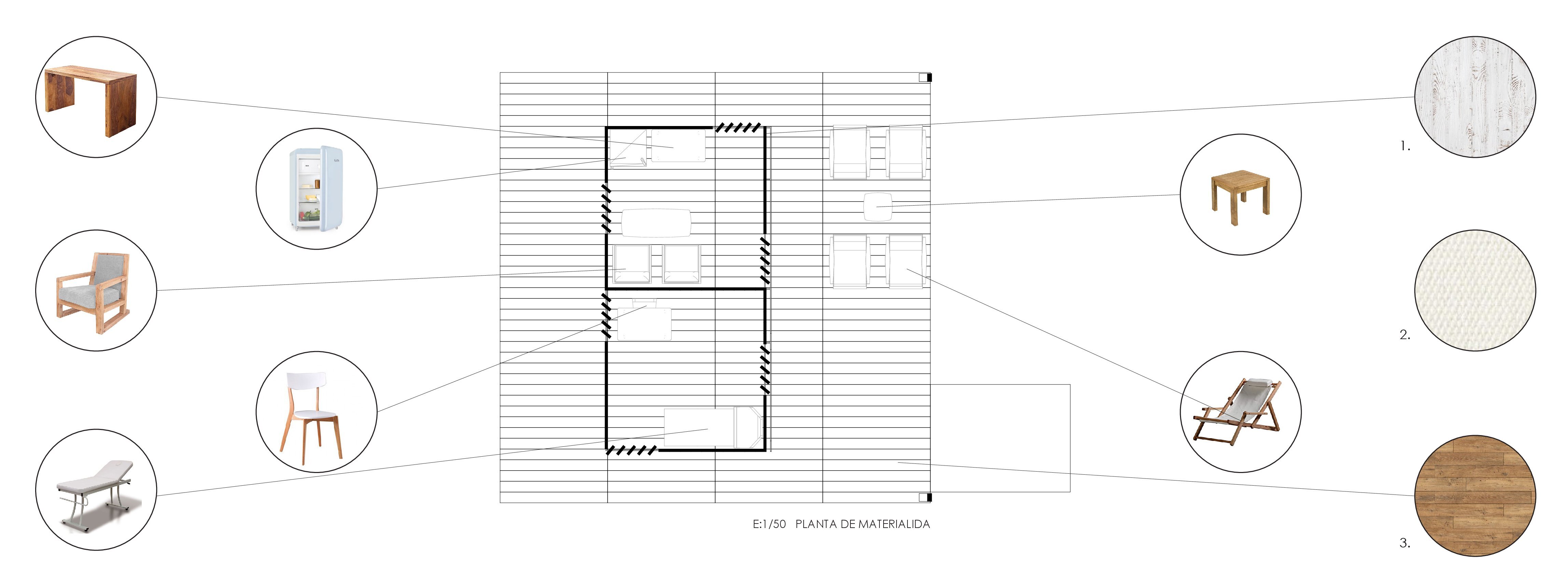
Al final de este eje encontramos la posta sanitaría, que surge como necesidad de un puesto de primeros auxilios para los turistas o residentes que se encuentren en la playa o en los alrededores de ella. Esta posta se apoya en la enfermería de la escuela de deportes náuticos. Por ello se dispone dentro de la parcela y en el borde de la playa y no dentro de ella, de esta manera podemos comunicar los dos edificios y que uno sea una pequeña ampliación del otro ya que estos comparten necesidades. La escuela facilita sus instalaciones de vestuario, enfermería, almacén... de esta manera conseguimos reducir al máximo el programa de la posta sanitaria.
Como en la escuela de deportes, se plantea un edificio totalmente pasante y con ventilación cruzada, como podemos observar, también continuamos con la idea de un plano, de esta manera no dañamos la visual.


Posta Sanitaria
- Categoria: Edificación Sanitaria
- Área: 16 m2
- Fecha: 15 de Mayo, 2021
- Estado: Diseñado