Centro de investigación en arquitectura
En primer lugar, lo que pretendíamos hacer en esta parcela es separar en dos bloques diferentes conectados a partir de un núcleo vertical.
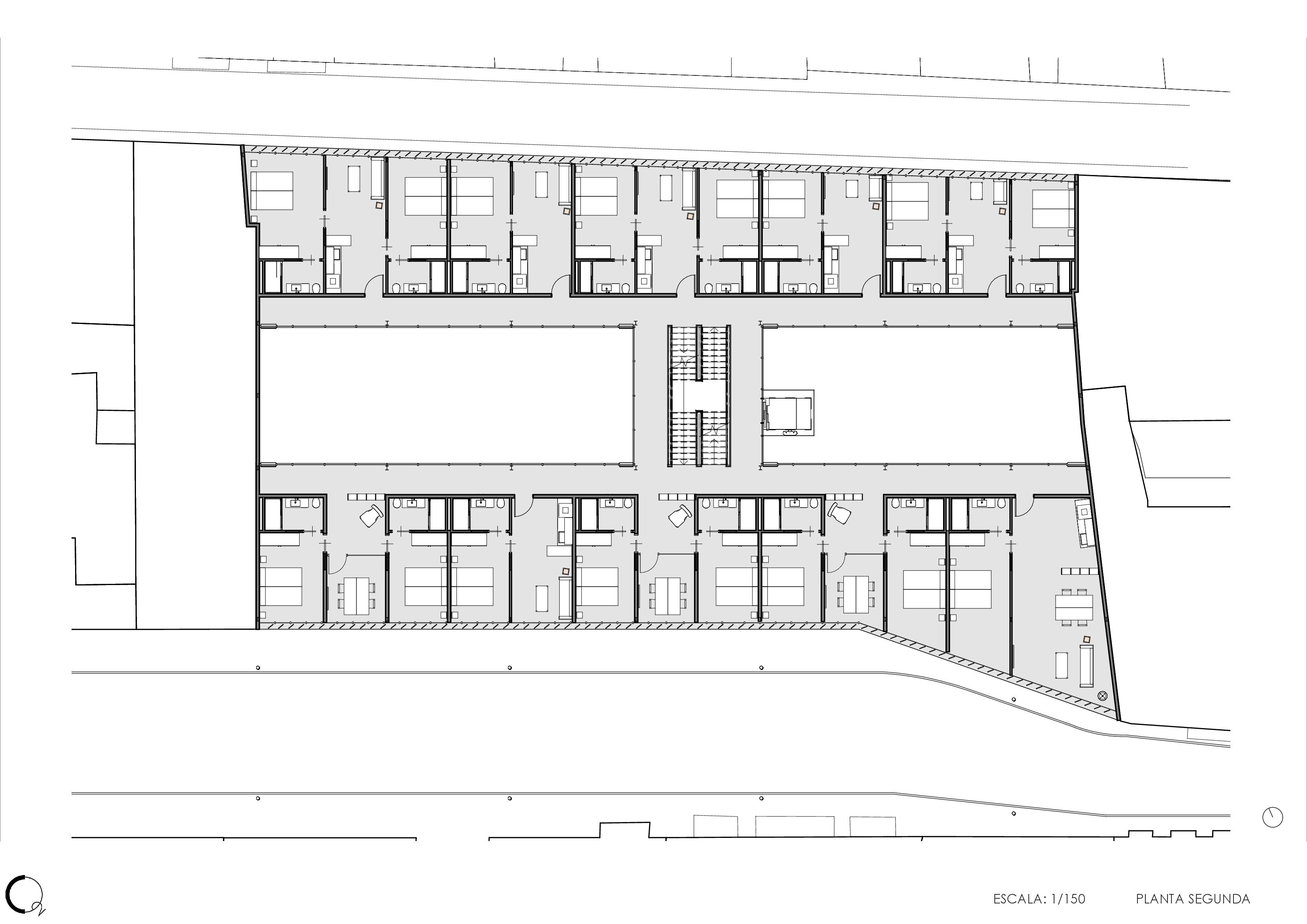
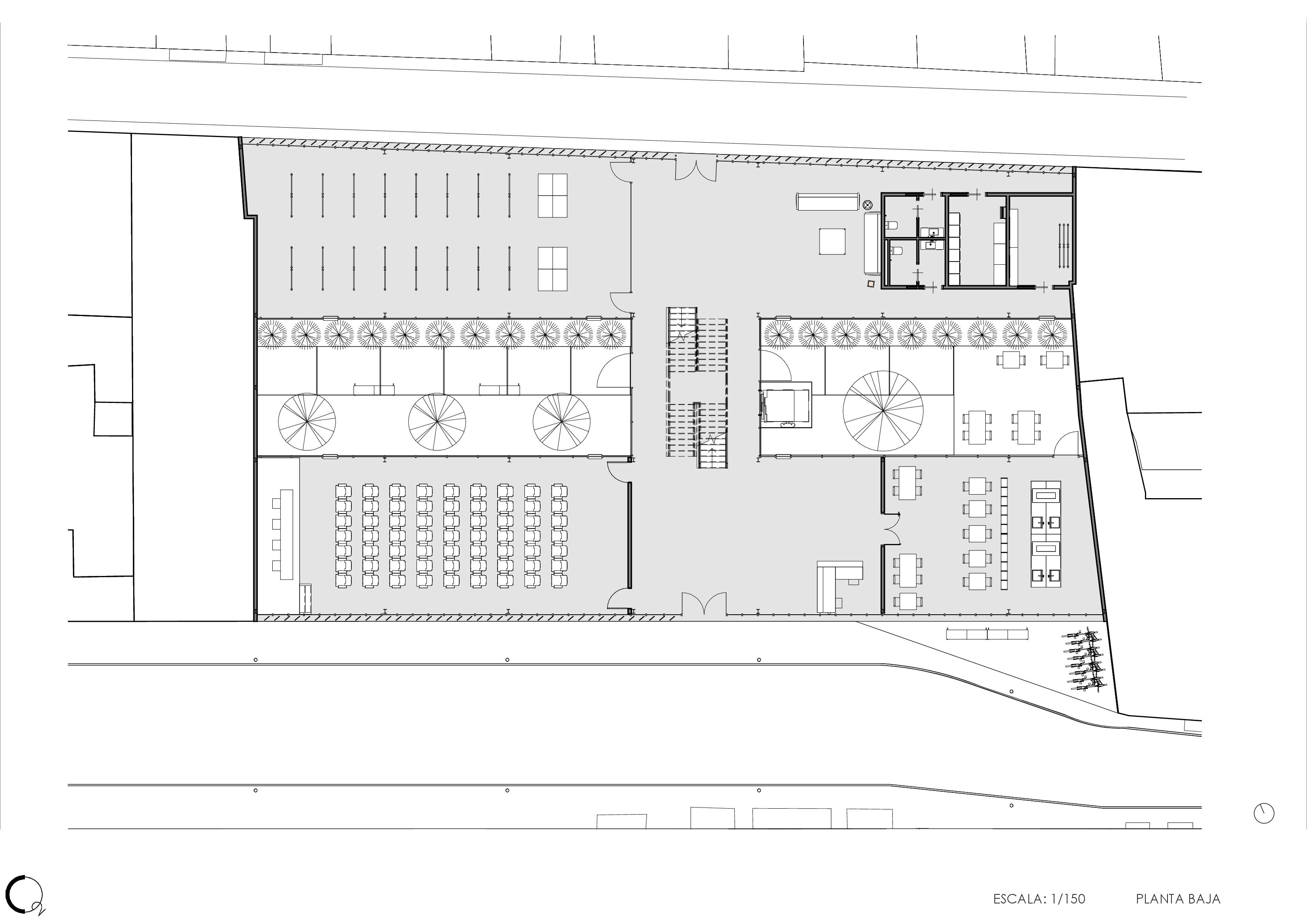
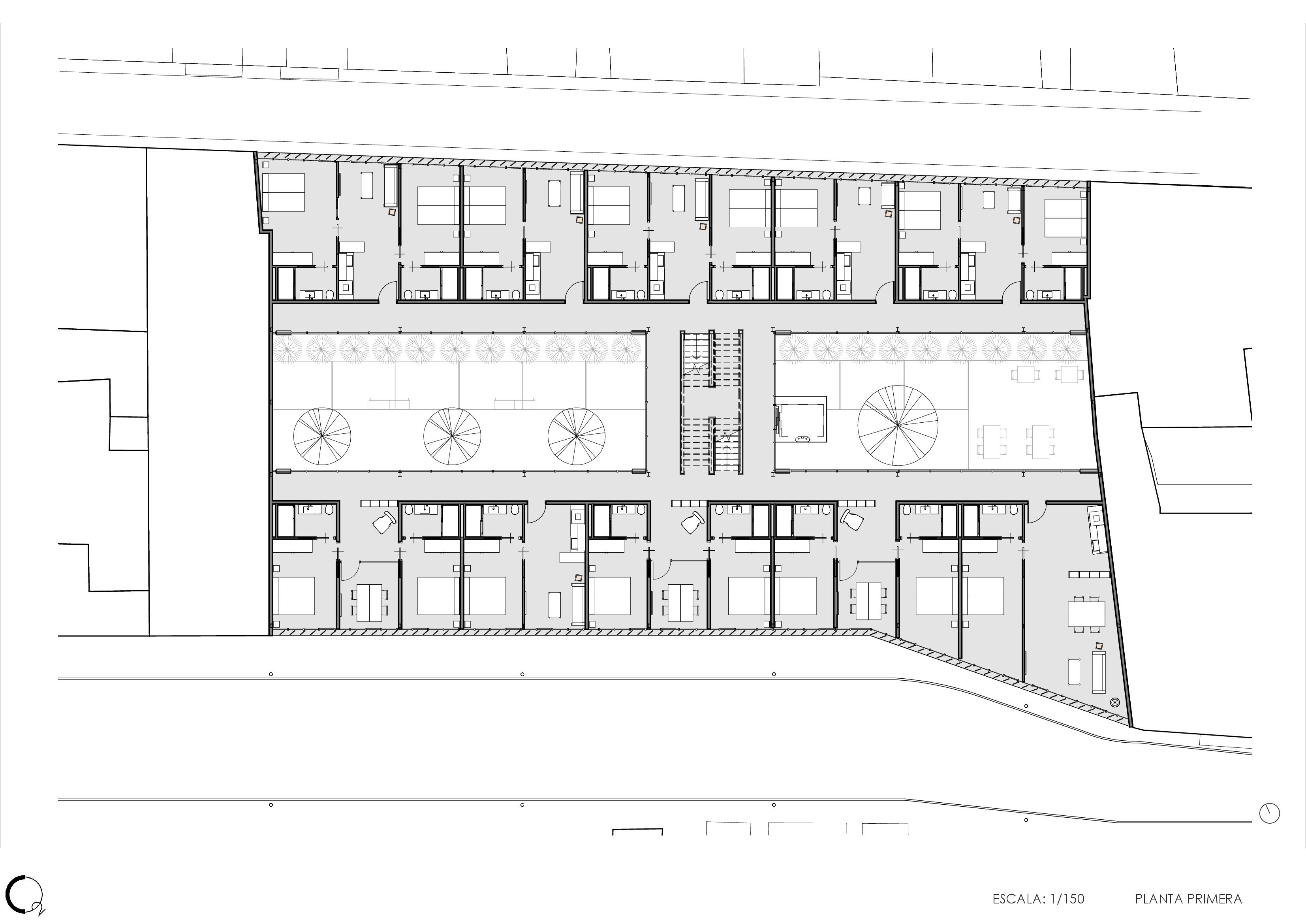
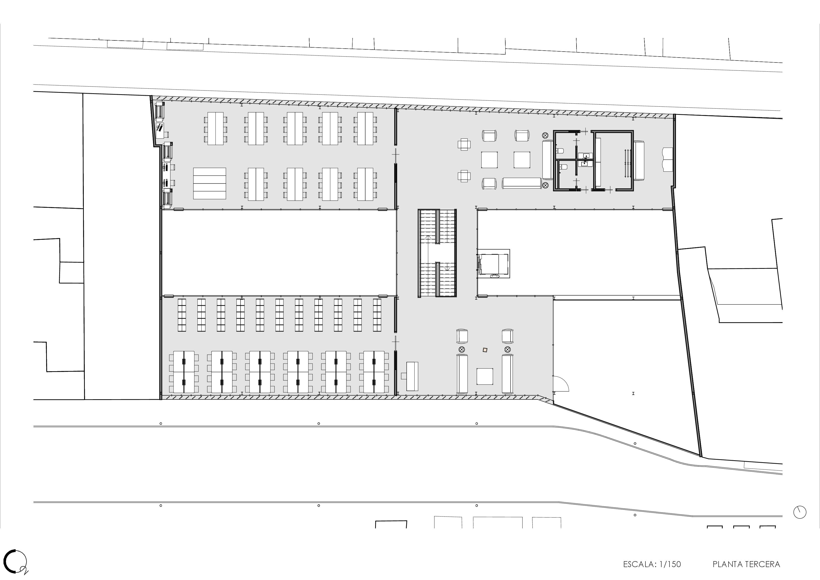
Estos dos bloques que diferenciamos son el bloque privado y el bloque colectivo, donde en el privado estarán los módulos de habitación y en el colectivo, todo el programa de trabajo en común, clases, etc...
En cuanto al núcleo vertical, será muy abierto y abriéndose a los dos patios, de esta manera se consigue mucha luz natural por todo el núcleo. Los patios separan cada uno de estos bloques en dos, de esta manera el programa de colectivo se puede separar dependiendo de sus funciones.
En según, planteamos el esquema final con el que resolveremos el programa del edificio. En la planta podemos observar los ejes principales que se juntan en el núcleo de la parcela.
A lo largo de esta surgen unos módulos cada 6m que forman la retícula de la estructura. En el centro de todo esto podemos encontrar nuestro núcleo vertical. En cuanto a la sección podemos observar, que las plantas 1 y 2 son las plantas más privadas, por otro lado, en la planta baja y 3 se encuentran las zonas más abiertas y colectivas.
En las plantas privadas, encontraremos una métrica cada 3m, donde destacaremos 3 tipos de vivienda diferente y cabinas de trabajo autónomo.
CIA
- Categoria: Edificación Pública
- Área: 2670 m2
- Fecha: 15 de Julio, 2020
- Estado: Diseñado
